SPMM-ház
Átadás éve
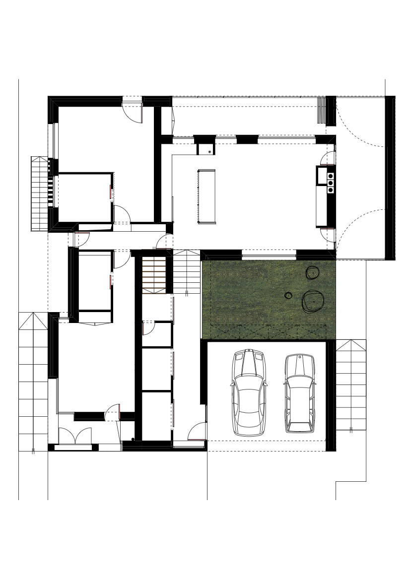
2010A ház Ebesre készült egy a város szélén lévő még üres telekre. A két generációs ház túlságosan nagy tömeget úgy próbáltuk csökkenteni, hogy a kiszolgáló helyiségek a pincébe, a lakóhelyiségek a kiemelt félszintre kerültek. Így az utcáról egy másfél szintes épület tömege jelenik meg. Ennek az eltolásnak az épület energetikai jellemzőjében is kedvező hatása van.
Az utcai homlokzat északi, ezért zártabb lett, a belső, udvari homlokzat déli tájolású, ezért nyitottabb.
A homlokzatra bontott tégla került, a tető extenzív zöldtető, a faburkolatok rétegragasztott táblák.