Munkák
Iroda
Hírek
Kapcsolat
HU
EN
Munkák
Iroda
Hírek
Kapcsolat
HU
EN
Menü
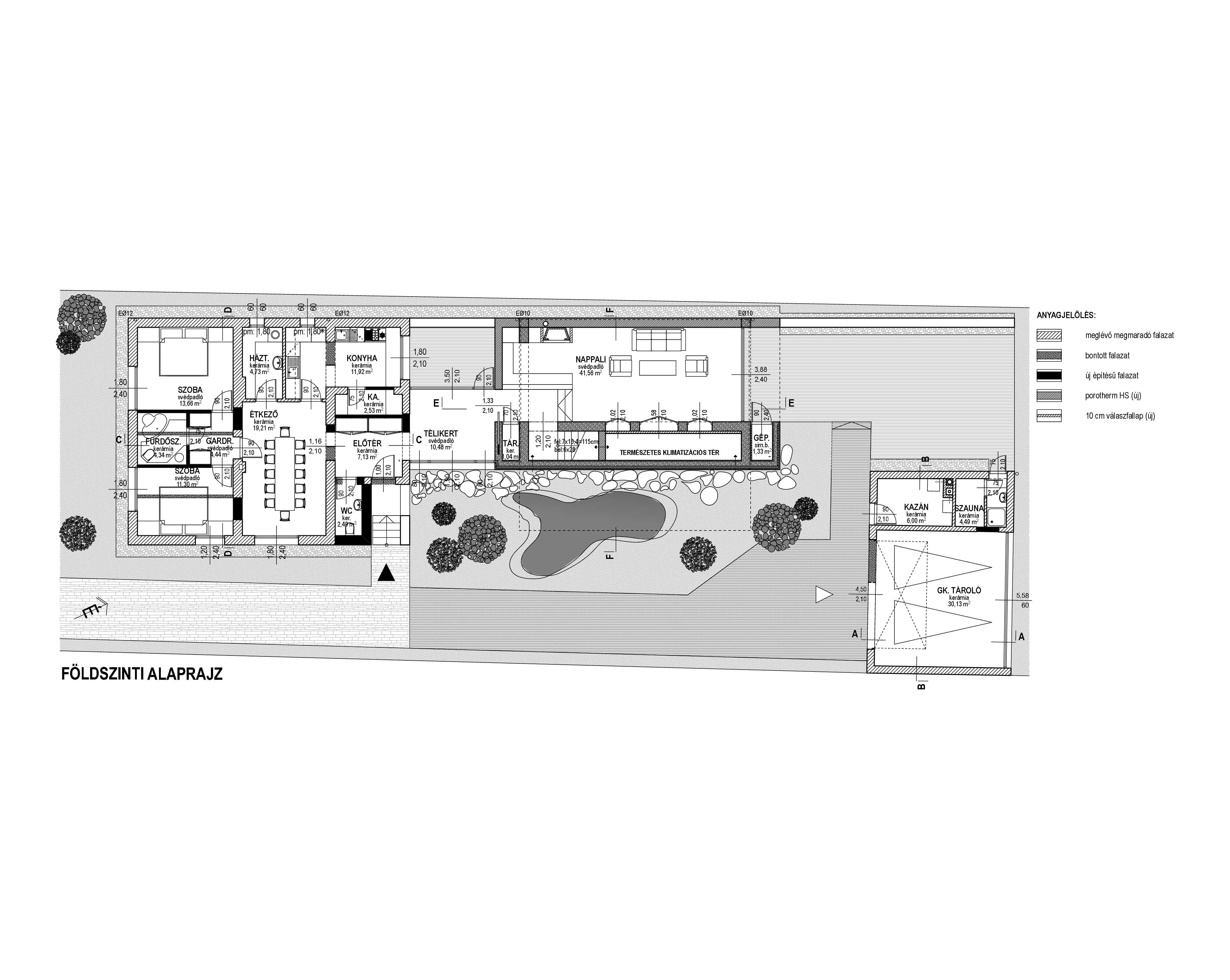
Kadosa utcai családiház
Megvalósulás helye
Debrecen, Kadosa utca
Átadás éve
2008
+ További részletek