Munkák
Iroda
Hírek
Kapcsolat
HU
EN
Munkák
Iroda
Hírek
Kapcsolat
HU
EN
Menü
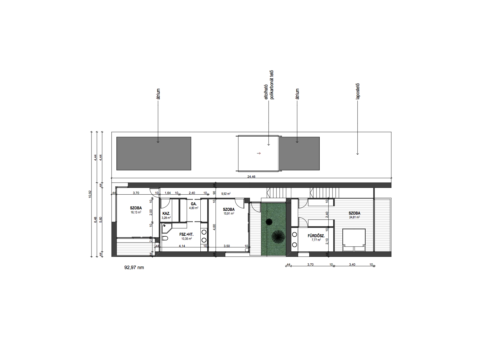
Vikár utcai családiház
Megvalósulás helye
Debrecen, Vikár Béla utca
Átadás éve
2009
+ További részletek